四辻の家 大山崎町鳥居前 4号地

この物件の見学・
お問合せはこちら

木目調のフローリングが温かみを感じさせる、落ち着きのあるリビングダイニング。

ホワイトを基調とした内装が、空間全体に明るさと清潔感を与え、心地よい居住空間を演出します。

キッチンは、収納力と機能性を兼ね備えた対面式システムキッチンを採用。リビングと程よくつながるオープンなつくりで、家族との会話を楽しみながら料理ができます。

【4号地】決算特別価格4,890 万円(外構・消費税込み)

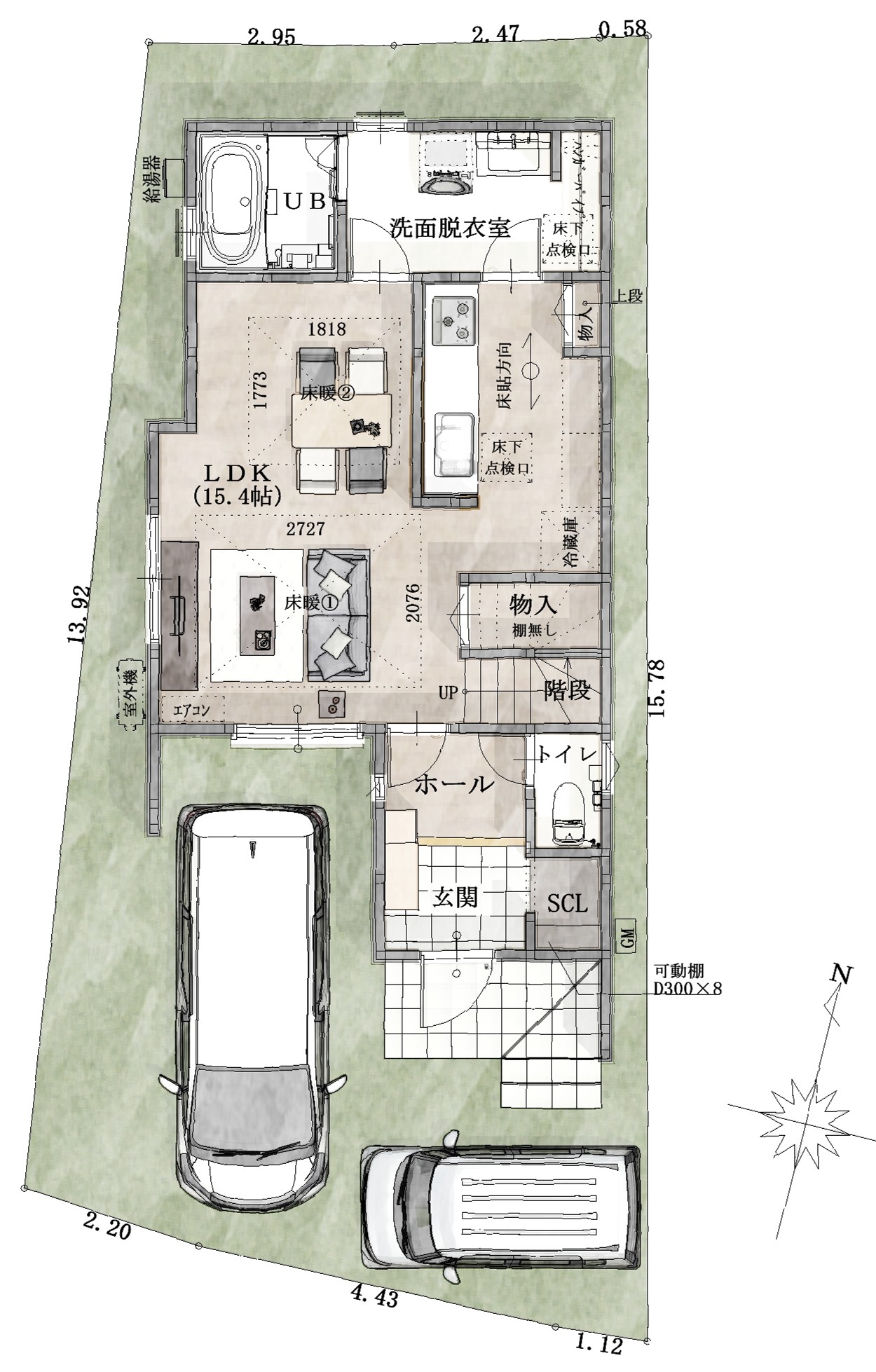
3LDK
洗面脱衣室は2WAY仕様!回遊性のある間取りで、毎日の家事が捗ります。
  • 敷地面積:101.54㎡(30.71坪)
  • 施工面積:89.03㎡(26.93坪)
  • 1F床面積:45.55㎡
  • 2F床面積:43.48㎡
  • バルコニー面積:7.45㎡

◇4号地はお好きなタイミングで見学可能な無人内見出来る物件です◇

お好きな時に、スタッフ無しで、自由にみられる「無人内見システム」を導入しております!

営業の方と一緒だと、ちょっとゆっくり内見しにくい‼︎
内見したいけど、営業されそうだし、、、
家族でゆっくり内見したい!
というお客様も、自由にゆっくり内見出来るシステムです。

無人内見予約はこちら

現地マップ

この物件の見学・
お問合せはこちら
モデルハウスの見学予約